Haus 44.5 - Zimmer
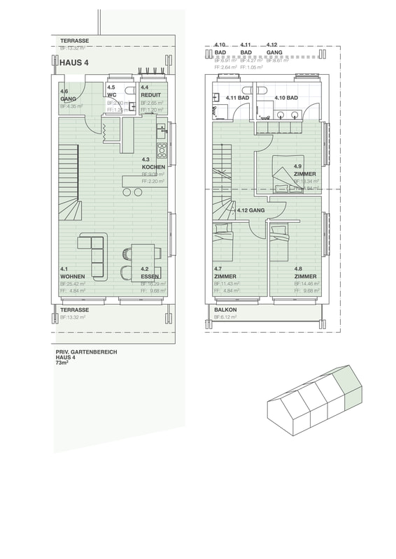
Die Wohneinheit bietet 152 m² Wohnfläche auf drei Ebenen, inklusive einem unausgebauten Dachgeschoss für individuelle Gestaltungsmöglichkeiten. Eine nachhaltige Holzrahmenbauweise, eine effiziente Luft-Wasser-Wärmepumpe und hochwertig isolierte Fenster bieten für ein angenehmes Wohnklima. Das Erdgeschoss umfasst eine offene Wohnküche mit direktem Zugang zur Terrasse und zum privaten Garten. Die Obergeschosse bieten mehrere helle Schlafzimmer, moderne Badezimmer und einen Balkon mit Blick auf die grüne Umgebung. Aussenraumfläche: 306.36m2 Verkaufspreis Haus: CHF 980'000.– Preis Abstellplatz: gedeckt CHF 25‘000.-- | offen CHF 20‘000.-- Kontaktieren Sie uns für weitere Informationen |


